Betonijulkisivut | NRO 4/2025
Uutta julkisivuarkkitehtuuria toteutettiin muotobetonilla – EriCa, Green Chemistry Park
EriCa, Green Chemistry Park Espoon Finnoossa on edelläkävijähanke vihreän…
Vuonna 1965 valmistunut Tapiolan kirkko kuuluu Tapiolan keskustan 1900-luvun modernia arkkitehtuuria edustaviin, asemakaavalla suojeltuihin rakennuksiin. Kirkon peruskorjauksen myötä rakenteet toimivat nyt kosteusteknisesti hyvin ja julkisivuelementit voidaan käyttää hallitusti loppuun.
Tapiolan kirkosta järjestettiin kutsukilpailu, jonka voitti professori, arkkitehti Aarno Ruusuvuori kilpailutyöllään ”Pyhät puut.” Kirkon tonttia ympäröivät korkeat valkoiset tornitalot, joiden kanssa kirkkorakennuksen on vaikea kilpailla, joten arkkitehti päätti tehdä rakennuksesta tumman varjon mäntymetsikköön.
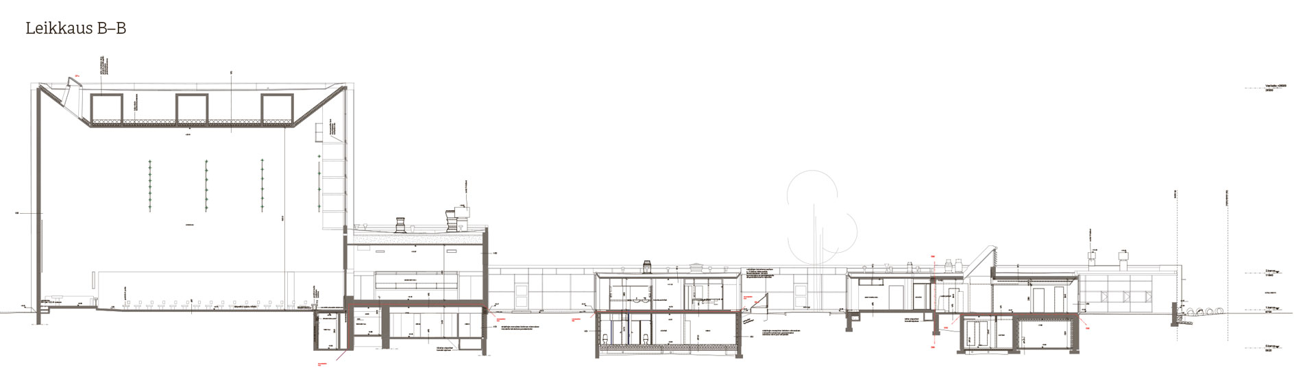
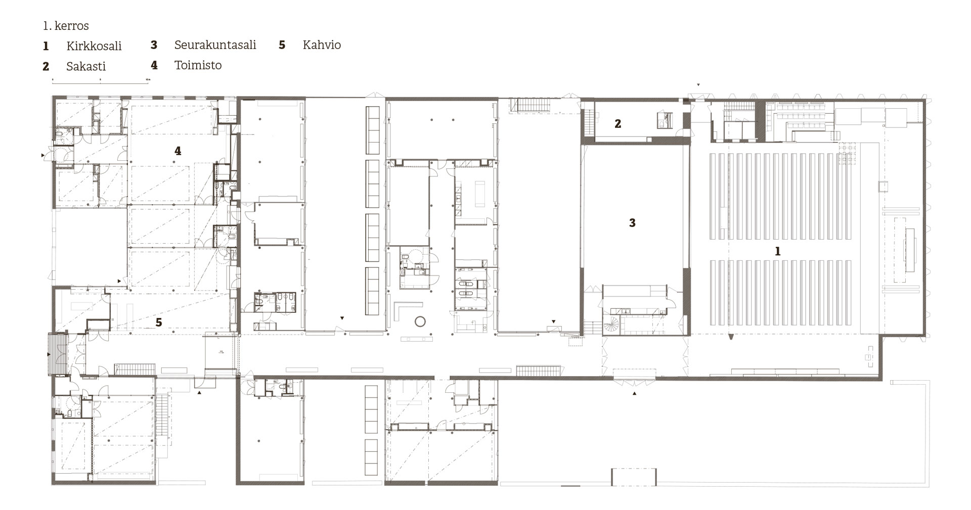
Betonista rakennettu kirkkorakennus on ulkoapäin muurien sulkema ja sen korkein osa on kuutiomainen kirkkosali. Rakennuksella ei ole selkeää pääjulkisivua. Rakennuskompleksiin kuuluvat sisäpihan toisistaan erottamina varsinainen kirkkosali, pienempi seurakuntasali, toimistotilat sekä kerhotilat. Huonetilat avautuvat lasiseinillä sisäpihalle. Tapiolan kirkossa ei ole tornia tai myöskään erillistä kellotornia.

Kirkko on kaksikerroksinen. Ensimmäinen kerros on maan tasalla. Alimmassa kerroksessa on pommisuojat sekä erilaisia kerho- ja neuvottelutiloja.
Arkkitehti Anna Ruusuvuoren suunnittelema laajennus valmistui vuonna 1992.
Kirkon julkisivu koostuu betonista, lasista ja teräksestä. Askeettisen ja korkean kirkkosalin seinät on muurattu harmaista harkkotiilistä ja lattiassa on käytetty punaista laattatiiltä. Valoa kirkkosaliin tulee kattoikkunoista ja isosta länsi-ikkunasta, jonka valo heijastuu betonirakennelman kautta sisälle. Salin sivutilat saavat auringonvaloa julkisivupilastereihin sijoitetuista kapeista ikkunoista.

Pääosa kirkkorakennuksesta ja asuinrakennus perustettiin maanvaraisesti ja osittain suoraan kalliolle betonianturoin ja perusmuurit valettiin betonista pystylautamuoteissa. Kirkko- ja seurakuntasali jouduttiin kuitenkin perustamaan halkaisijaltaan 50–70 cm:n paaluille noin 10 metrin syvyyteen.
Kirkko- ja asuinrakennuksen kantavat rakenteet tehtiin kokonaan teräsbetonista. Toimisto-, kerho- ja seurakuntatilojen ulkoseinien päädyt ovat betonisia puhdasvaluseiniä, joiden ulkopinnassa käytettiin pystysuuntaisia raakavalumuotteja. Yhdyskäytävien, seurakuntasalien ja toimistosiiven pitkien seinien ulkopinnassa käytettiin lämmöneristettyjä betonisia sandwich-elementtejä.
Kirkkosalin ulkoseinärakenne muodostuu kantavista teräsbetonipilareista, joihin jo valuvaiheessa kiinnitettiin ei-kantavat lämmöneristetyt sandwich-elementit. Alapohjat ovat enimmäkseen maanvaraisia teräsbetonilaattoja. Kirkkosalin tiililattian alla on paksu lecasorakerros. Väli- ja yläpohjat ovat pääosin alalaattapalkistoja.
Kirkossa on sekä sileitä, betonielementein toteutettuja betonijulkisivuja, että karkeampia paikallavalupintoja. Kirkkorakennuksen siipiosien päätyseinät, kirkonkellojen etuseinäke ja sokkelit ovat paikalla valettuja ja niissä pystysuuntaisen raakalautamuottilaudoituksen jälki näkyy selvästi.
Kirkon eteläjulkisivu sekä seurakuntasalin pohjois- ja länsijulkisivut koostuvat puolen moduulin levyisistä sileistä, pystysuuntaisista elementeistä ja kirkkosalin julkisivut sileävalupintaisista, moduulin levyisistä U-mallisista elementeistä. Korkeussuunnassa julkisivu jakautuu kahdeksaan elementtivyöhykkeeseen.
Kirkkosalin ja sen länsi-ikkunan betonielementtien pintoja ja saumoja sekä paikalla valettuja betoniseiniä korjattiin vuosina 2009–2010. Kirkkorakennuksen alkuperäiset länsijulkisivun elementit purettiin pois 1990-luvun laajennuksen yhteydessä.
Tapiolan keskustan asemakaavassa kirkko on merkitty suojelukohteeksi.
Viidenkymmenen vuoden ikään ehtineessä Tapiolan kirkossa – kuten useimmissa ikätovereissaan – oli todettu kosteusteknisiä ongelmia ja sen ilmanvaihtokin kaipasi kipeästi parantamista. Suurempaa peruskorjausta ryhdyttiin valmistelemaan jo vuonna 2012. Silloinen hankeselvitys sai kuitenkin voimakasta kritiikkiä Museovirastoilta suojelukysymyksiin liittyen.

Vuosina 2019–2021 toteutettu peruskorjaus käynnistettiin tarveselvityksellä vuonna 2016 ja uudella hankesuunnitelmalla. Suojelua valvovana viranomaisena toimi Museovirasto.
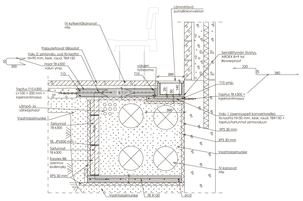
Peruskorjaushanketta edeltävässä kuntotutkimuksessa raskaimmat rakennustekniset korjaus- ja uusimistarpeet löytyivät maanvastaisista rakenteista.
Betonijulkisivujen kunto yllätti kuitenkin positiivisesti. Betonissa todettiin ikään nähden normaalia etenevää korroosiovauriota ja siihen liittyvää betonin lohkeilua. Kuntotutkimuksen perusteella ulkovaipan jäljellä olevaksi elinkaareksi arvioitiin noin noin 15–20 vuotta.
Toukokuussa 2020 kirkossa käynnistyneen korjausrakennushankkeen tavoitteena oli uusia kirkon rakenteita ja talotekniikkaa, kuten lämmitys-, viemäri-, vesijohto- ja ilmanvaihtojärjestelmät, ja kunnostaa laajennusosan toimisto- ja yhteiskäyttötilat. Kellareissa uusittiin 1960-luvun alapohjat sekä maanvastaisten seinärakenteiden sisäpuoliset rakennekerrokset.
Kirkon sakraalitilat, eli sakasti, kirkkosali ja kastekappeli, kuuluvat vaativimpaan olemassa olevaan SR1-suojeluluokkaan. Se tarkoittaa, että rakennuksen julkisivu, sisäpinnat ja kalusteet kuuluvat suojelun piiriin, eikä niitä saa muuttaa millään tavalla.

Vanhalla puolella kaiken oli säilyttävä alkuperäisessä tilassaan kalusteita myöten.
Anna Ruusuvuoren suunnittelema, vuonna 1992 valmistunut kirkon laajennusosa kuului korjausrakennushankkeeseen, mutta ei ollut yhtä tiukasti suojeltu kuin kirkon vanha puoli. Laajennusosan puolella uusittiin muun muassa wc- ja keittiötilat, puuikkunat, lattiapinnoitteet sekä tiloja seurakuntalaisten kohtaamispaikaksi.
Peruskorjauksessa tavoitteena oli säilyttää kirkon ulkoasu sellaisena, että suurinta osaa korjaustöistä ei erota paljaalla silmällä. Tilat säilytettiin pääsääntöisesti entisellään ja saman näköisinä kuin aiemminkin. Rakennus on peruskorjauksen jäljiltä rakennusfysikaalisesti toimiva, kunnossa ja käyttäjilleen terveellinen käyttää.
Hanke pysyi hyväksytyssä 17,3 miljoonan euron budjetissa ja valmistui marraskuussa 2021. Valmistuminen viivästyi hieman odotetusta, mikä johtui suurimmaksi osaksi katossa havaituista vuodoista ja pandemian aiheuttamista viiveistä teräsrakenteiden ja puutavaran toimituksiin. Myös katto korjattiin remontin yhteydessä.
Allianssihankkeena toteutetun peruskorjauksen suunnitteluvaiheeseen käytettiin huomattavasti aikaa ennen korjaustöiden aloittamista.
Tapiolan kirkon peruskorjauksen rakennesuunnittelija, rakennefysikaalinen suunnittelija ja kosteudenhallintakoordinaattori oli Ideastructura Oy. Rakennesuunnittelijana työskenteli insinööri (AMK) Antti Nurmi. Rakennusfysikaalisena suunnittelijana ja kosteudenhallintakoordinaattorina hankkeessa työskenteli insinööri (AMK) Antti Siika-aho.
Kohde ei ollut aivan helpoimmasta päästä suunnitella eikä toteuttaa. –Tapiolan kirkkorakennuksessa on varsin haastavia maanvastaisia rakenteita, kuten ahtaille sisäpihoille sijoittuvia valokuilurakenteita ja maanvastaisia seiniä, joita ei voitu avata ulkoapäin kaikilta osin perustamistasoon asti. Myös lähes maanpinnan tasossa sijaitsevat lasirakenteisten ulkoseinien alaosat sokkelihalkaisuineen, kattoikkunat sekä maanvastaisten alapohjarakenteiden sisään piilotettu talotekniikka toivat korjaussuunnitteluun omat haasteensa, Antti Siika-aho kertoo.
Julkisivuelementtien kunto osoittautui tutkittaessa yllättävän hyväksi siihen nähden, että ne olivat työmaalla valettuja elementtejä ja muutoinkin elementtirakentaminen oli 1960-luvun alussa varsin tuoretta tekniikkaa. Kaikista julkisivuosista, myös 1990-luvun laajennuksesta, paljastui teräskorroosiota ja halkeamia, joista laadittiin yksityiskohtaiset vauriokartat paikkakorjauksia varten.

Kirkon julkisivuelementtien uusimistakin mietittiin, mutta siitä luovuttiin. – Betonirakenteet haluttiin käyttää hallitusti käyttöikänsä loppuun asti. Peruskorjauksessahan säästettiin joka tapauksessa mahdollisimman paljon vanhoja rakenteita, Siika-aho korostaa.
Julkisivupintoihin oli kertynyt levää ja epäpuhtauksia, jotka puhdistettiin ennen betonirakenteiden pielien ja halkeamien paikkakorjauksia. Niistä vastasi betonirakenteiden konservointiin, restaurointiin ja vaativaan korjausrakentamiseen erikoistunut urakoitsija Ukri Oy.
Kaikki elementtisaumaukset uusittiin pohjanauhoineen ja elastiset saumat uusittiin.
Siika-aho korostaa, että lopputuloksessa ei tavoiteltukaan tasalaatuista pintaa, vaan paikalliset erot julkisivuissa hyväksyttiin. –Aika näyttää, miten paikat aikanaan erottuvat julkisivun taas patinoituessa. Kaiken korjauksen periaatteena on ollut käyttää alkuperäiset elementit käyttöikänsä loppuun saakka.
Karkea, vuosia ja korjauksia nähnyt betonipinta sopii hyvin myös Ruusuvuoren betonibrutalistiseen kirkkoarkkitehtuuriin.
Kulkureiteillä olevia kuorielementtejä varmistuskiinnitettiin kantaviin rakenteisiin uusilla ankkureilla.
–Julkisivuissa on rakennusajalle tavanomaisia, ns. mustalla teräksellä kiinnitettyjä ulkokuorielementtejä. Jotta kuorielementit kulkureiteillä varmasti pysyisivät paikallaan vielä seuraavat 15 – 20 vuotta, niille tehtiin aika mittavia ja haastavia varmistuskiinnityksiä kiila-ankkurityyppisellä ratkaisulla, puristushylsyillä ja runkokiinnikkeillä.
–Piilokiinnikkeet on naamioitu hyvin, mutta tarkkasilmäinen voi käydä bongaamassa ne sateisella säällä, jolloin ne erottuvat jonkin aikaa julkisivun pinnassa, toteaa Siika-aho.


Tapiolan kirkon maanvastaisten betonirakenteiden kosteustekniset haasteet oli selätettävä.
Rakennuksessa oli hyvin matalat sokkelit ja lattiat lähellä maanpinnan tasoa. Sulamis- ja sadevesien aiheuttama kosteusrasitus sokkelirakenteille on ollut aina varsin suurta. Jonkin verran oli myös pakkasrapaumaa. Osa ahtailla sisäpihoilla syvällä sijaitsevista salaojalinjoista oli sortunut, eikä niitä voinut kaikilta osin kaivaa auki puiden ja ahtaiden pihojen takia.
Peruskorjauksessa piti parantaa rakennuksen vierustan vedenohjautuvuutta ja vedenpoistuvuutta rakennuksen vierustan geomuovien, maanpintojen pienten muokkausten ja linjakuivatuksen avulla. Uusia salaojalinjoja rakennettiin sinne, missä se oli mahdollista. Osa uusista salaojalinjoista sijoitettiin maanvastaisen alapohjan alle, sillä ahtaat sisäpihat ja suojellut puut olisivat tehneet ulkopuolisen kaivuutyön lähes mahdottomaksi. Kirkkosalin päätyyn rakennettiin myös uudet hulevesien viivytysaltaat.
Kaikki sokkelihalkaisut puhdistettiin ja kuivattiin. Vanhat eristeet poistettiin ja korvattiin nykyaikaisilla lämmöneristeillä. Liittymät tiivistettiin huolellisesti. Sokkelien ulkopinnat käsiteltiin Insinööritoimisto Sulin Oy:n betonirakennetta tiivistävällä, hiushalkeamia silottavalla ja rakenteen kemiallista kestoa lisäävällä Xypex Consentrate -pintakäsittelyllä. Noin 40 jm rapautunutta sokkelin yläpintaa valettiin kokonaan uudelleen. Massaan lisättiin valmisbetoniasemalla massaan sekoitettava Xypex Admix C-500 NF -lisäaine, joka tiivistää betonia vedenpainetta sekä kapillaarista kosteutta vastaan.
–Lopputulos on varsin hyvännäköinen ja kosteusteknisesti sokkelit ovat toimineet nyt hyvin, Siika-aho kertoo. – Pihat ovat tosin edelleen melkein lattiapinnan tasossa. Pienen pieniä maanpinnan tason laskuja pystyimme tekemään osiin rakennusta.
1960-luvun rakennetun osan maanvastaisessa alapohjassa käytetty mineraalivilla korvattiin nykyaikaisella lämmöneristeellä. Maanvastaisissa betonilattioissa oli käytetty huonosti vesihöyryä läpäiseviä pintamateriaaleja, kuten muovimattoja ja linoleumia. Kaikki tiiviit lattiapäällysteet poistettiin ja ne korvattiin erittäin hyvin vesihöyryä läpäisevillä ja kosteutta kestävillä pinnoiteratkaisuilla, kuten kiiltohiotuilla betonilattioilla.
Tapiolan kirkossa oli myös erittäin haastavia, kellariin valoa tuovia maanvastaisia valokuilurakenteita. –Ahtaiden pihojen vuoksi niihin ei kaikilta osin päästy ulkopuolelta tekemään kosteuden- ja vedeneristyksiä perustamistasoon saakka. Rakenteen vesitiiviyden parantamisessa käytettiin Sulinin sisäpuolisia erikoislaasteja.
Rakennuksen alkuperäisellä osalla on myös yksittäisiä väliseinälinjoja, jotka ulottuvat kaikkien kuivatuslinjojen alapuolelle. Jopa ulkopuolisten salaojienkin juoksukorot jäävät väliseinien alaosia ylemmäs. Näihin kohtiin tehtiin porareikäinjektoimalla kapillaarikatkot Xypex Consentratella.
Kaiken kaikkiaan kirkon maanvastaisten rakenteiden kosteustekninen toimivuus saatiin hyvälle tasolle. Lisäksi kirkkoon alapohjaan rakennettiin radonpoistojärjestelmä, jolla voidaan radonin lisäksi hallita myös alapohjan kosteusolosuhteita.


Tapiolan kirkon peruskorjauksessa kenties kaikkein haastavinta oli kuitenkin saada lähes kaikki talotekniikka kätkettyä maanvastaisten betonirakenteiden sisään. Lopputulos toki on kaiken vaivan väärtti. –Vaikka kaikki talotekniset järjestelmät on uusittu, lopputulos kirkon sisällä näyttää siltä, kuin mitään ei olisi tapahtunut, Siika-Aho ihastelee.
–On ihme, että kaikki tekniikka ja tuloilmaelimet saatiin naamioitua betonirakenteiden sisään. Alapohjaa oli piikattava auki kuiluille ja kanaaleille. Se oli iso työ ja vaati hyvää yhteistyötä arkkitehtien, talotekniikkasuunnittelijoiden sekä urakoitsijan kanssa. Onneksi kyseessä oli allianssihanke. Allianssi helpotti aika montaa vaikeaa ratkaisua, kun saimme hyvässä yhteistyössä ratkottua asioita työmaavaiheen aikana, Siika-aho kiittää.
Insinööritoimisto Sulin Oy:n toimitusjohtaja Ronald Sulin kiittää Siika-Ahoa hankkeen eri osapuolten aktiivisesta mukaan ottamisesta ja sitouttamisesta yhteisen, kohdekohtaisen ongelmanratkaisun kehittämiseen.
– Tällainen mukaanottava toimintamalli on mielestäni erittäin toivottavaa koko rakennusalalla. Hyvän lopputuloksen saavuttaminen on merkittävästi epävarmempaa, mikäli tiedonkulku on rajoitettua ja osapuolet toimivat kukin erillään. Tällöin ei synny yhteistä ymmärrystä tavoiteltavasta kokonaisuudesta, Sulin painottaa.
Kohteessa kiinnitettiin erityistä huomiota rakenteiden ilmatiiviyteen ja hallitsemattomien ilmavuotojen ehkäisemiseen betonirakenteissa tai läpivienneissä. Maanvastaisten betonialapohjien ja teräsbetoniseinien liittymät on tiivistetty huolellisesti, jolla turvataan sisäilman laatua.
Tapiolan kirkon alkuperäisen osan runko on paikallavalettu ja pääosin kaikki valupinnat ovat näkyvää pintaa arkkitehtuurin hengessä. Vanhoista suunnitelmista kävi ilmi, että alkuperäisen kirkkosalisiiven rakennesuunnittelija on joutunut pinnistelemään pysyäkseen Ruusuvuoren näkemyksen perässä, samoin varmasti muottikirvesmiehet. Erityisen vaikuttavat ovat kirkkosalin yläpohjaa kannattelevat paikallavaletut kotelopalkit, joiden jänneväli on 25 metriä ja kotelon seinämävahvuus vain 15 cm. –Vielä 1960-luvun alussa betoni ja harjateräs olivat kalliita, mutta insinöörityö halpaa.
–Peruskorjauksessa runkorakenteisiin ei kohdistunut suuria korjaus- tai muutostarpeita. Suurin työ oli talotekniikan näkymättömiin sovituksessa ja monimuotoisten rakenteiden kapasiteettien analysoinnissa kanavarei´ityksiä varten, Nurmi kertoo.
Siika-aho korostaa, että Tapiolan kirkko on suojeltu arvorakennus, jonka peruskorjauksessa kaikkea tekemistä ohjasi tavoite pyrkiä mahdollisimman hyvään lopputulokseen.
Siika-aho haluaakin varmistaa, että kirkko pysyy kosteusteknisesti kriittisiksi tiedetyiltä rakenteiltaan ja rakennusosiltaan mahdollisimman hyvässä kunnossa käymällä tarkastamassa ne kahdesti vuodessa. – Joka kevät, kun lumet on sulanut ja syksyllä kun talvi lähestyy, hän täsmentää.
Siika-aho toivoisi, että varsinkin tällaisissa haastavissa suojelluissa sakraalikohteissa peruskorjauksen jälkiseuranta olisi tavanomaista peruskorjausta parempaa. – Siten saataisiin monta ikävää vauriota ennalta ehkäistyä.
Kaikkia haastavia peruskorjauksia ei välttämättä jälkiseurata juuri lainkaan, mihin Siika-aho toivoisi muutosta.
Suunnittelukohteena Tapiolan Kirkko oli Siika-aholle ja Nurmelle erityisen mieluisa, koska hankkeessa oli painotettu niin voimakkaasti sekä museaalisia ja ekologisia arvoja. –On sekä hienoa että ekologisesti kestävää, että rakennusosat ja rakenteet pyritään käyttämään turvallisesti loppuun saakka. Toki kirkon julkisivujen uusiminen olisi tullut myös huomattavasti kalliimmaksi.
Nyt Tapiolan kirkon julkisivujen tavoitekäyttöikä on noin 20 vuotta korjauksen valmistumisesta.
Julkisivujen kuntoa tulee tietenkin seurata. –Ylläpidossa ja huollossa julkisivurakenteiden kuntoon on kiinnitettävä huomiota. Jos paikallisia vaurioita havaitaan, niitä on varauduttava korjaamaan ennen laajempien vaurioiden syntymistä, Siika-aho korostaa.
Lähteet:
Kuvagalleria
+9
Kastemalja. Kirkon seinät näyttävät äkkiseltään tavanomaisilta, mutta seinien harmaat harkot teetettiin aikanaan erikoismittaisina. Kuva: Hannu Rytky
Tapiolan kirkon peruskorjaus oli Arkkitehtuurin Finlandia palkintoehdokkaana vuonna 2024.
Esiraadin mukaan kirkon korjaus edustaa nykyistä restaurointi-ihannetta, jonka mukaan uusien lisäysten tulee olla mahdollisimman huomaamattomia. Tärkeimmissä tiloissa tekniikka, putkistot ja kanavat on saatu kätkettyä piiloon. Esimerkiksi kirkkosalin laattalattiaa purettiin, lisättiin alle tekniikkaa ja asennettiin takaisin vanhat klinkkerilaatat.
Alttarista on tehty esteetön lisäämällä ramppi ensimmäisen penkkirivin tilalle. Lisäys on tehty niin eleettömästi, ettei se tunnu jälkikäteen tehdyltä. Suurimmat muutokset tehtiin 1990-luvun siivessä, jossa toimistojen tilalle rakennettiin kahvila ja pienempi monitilatoimisto.
Kun Suomessa nykyisin puretaan moderneja rakennuksia sisäilmaongelmiin vedoten, esiraadin mukaan Tapiolan kirkon peruskorjaus näyttää, että näitä rakennuksia voi myös korjata niin, että alkuperäinen arkkitehtuuri säilyy.
Kirkko on Tapiolan 1950–60-luvuilla toteutetun puutarhakaupungin keskustan keskeinen rakennus. Kirkon korjaus on siis arvokas teko myös kokonaisuuden säilymisen puolesta.
Arkkitehtuurin Finlandia -palkinnosta kilpailivat myös Hyytiälän metsäasema Juupajoella, Lamminrahkan koulukeskus Kangasalla, opistorakennus Lastu Järvenpäässä ja Tammelan Stadion Tampereella, jonka Ylen kriisialueiden ulkomaantoimittajana tunnettu Antti Kuronen valitsi voittajaksi.
Valmistumisvuosi: 2021–2022
Tilaaja: Espoon seurakuntayhtymä
Laajuus: 3502 m2
Arkkitehtisuunnittelu: AFKS Arkkitehdit Oy, Jari Frondelius, pääsuunnittelija, Jaakko Keppo, Juha Salmenperä ja Riitta Tuomisto, projektiarkkitehdit
Sisustussuunnittelu: Kaj Van der Puij
Maisemasuunnittelu: Soile Heikkinen
Urakoitsija: Peab Oy, allianssi
Rakennesuunnittelu ja rakennusfysikaalinen suunnittelu: Ideastructura Oy, Antti Nurmi, Antti Siika-aho
Akustiikkasuunnittelu: Akukon Oy, Anssi Ruusuvuori
LVIA-, sähkö- ja valaistussuunnittelu: Granlund Oy
Palotekninen suunnittelu: KK-Palokonsultti Oy
Artikkeliin liittyviä aiheita