Betonijulkisivut | NRO 4/2025
Uutta julkisivuarkkitehtuuria toteutettiin muotobetonilla – EriCa, Green Chemistry Park
EriCa, Green Chemistry Park Espoon Finnoossa on edelläkävijähanke vihreän…
Rakennukset | NRO 4/2025
Pentti Kareoja, professori, arkkitehti SAFA, ARK-house Arkkitehdit Oy | Sami Moisio, suunnittelujohtaja, A-Insinöörit Suunnittelu Oy
Meander Helsinki on yli sata metriä pitkä ja polveileva, 115 asunnon asuinkerrostalo Helsingin Töölössä, joka hyödyntää rakennuspaikan näkymiä ja tarjoaa asukkailleen monipuolisia yhteistiloja sekä ekologisia ratkaisuja. Rakennuksen kantava runko on paikallavalettua teräsbetonia, ja perustukset ovat pääosin kallionvaraisia.
Asuinkerrostalo Meanderin muoto hyödyntää rakennuspaikan näkymiä ja synnyttää ympärilleen intiimejä lähiulkotiloja. Yli sata metriä pitkä, polveileva rakennusmassa sisältää 115 asuntoa ja sen korkeus vaihtelee kahdesta seitsemään kerrokseen. Rakennus kulkee suorakulmaisen tonttinsa läpi kuin musiikillinen nuottiviivasto. Helsingin Töölössä, Taivallahden rannalla, sijaitsevaa tonttia reunustavat asuinrakennukset ja historiallisesti merkittävät Taivallahden autopataljoonan rakennukset.
Koko rakennusta kiertää lasilla verhoiltu, suojaava parvekevyöhyke. Meanderin kantavana rakenteena toimivat kohtisuorat betoniseinät, ja julkisivu on verhottu vaakasuuntaisilla, lämpimään sävyyn kuullotetuilla puupaneeleilla.
Kaikki asunnot avautuvat maisemaan korkeiden ikkunoiden ja yksityisten parvekkeiden kautta, näkyminä joko Taivallahden satama-alue, tai Hesperianpuiston vehreys. Yöllä rakennus hehkuu kuin jääveistos.
Rakennukseen on sisällytetty materiaalien ja yksityiskohtien kokemuksellinen ulottuvuus. Räätälöidyt ovenkahvat, valaisimet, käsinkudotut villamatot ja valetut koirankulhot heijastavat Meanderin muotoa. Kaikki puu on paikallisesti hankittua, mukaan lukien kestävästi korjattu suomalainen kuusi ulkoverhouksessa, parvekkeissa ja ikkunoissa.
Asukkaiden yhteisiä tiloja ovat muun muassa saunat, joogastudio, viinikellari, yhteiset oleskelu- ja coworking-tilat sekä 12-paikkainen elokuvateatteri. Taide ja arkkitehtuuri yhdistyvät suomalaisen kuvataiteilijan Fanny Tavastilan teoksissa; hän loi uniikkeja töitä jokaisen asukkaan kotiin sekä Meanderin yhteisiin oleskelutiloihin.
Steven Holl Architects saavutti kansainvälistä mainetta voitettuaan kansainvälisen kilpailun Helsingin nykytaiteen museon suunnittelusta. Voittanut ehdotus Kiasma valmistui vuonna 1997. Meander merkitsee studion paluuta Helsinkiin. Projekti toteutettiin yhteistyössä ARK-house Arkkitehtien kanssa.
Vuonna 2021 Newil&Bau osti hankkeen ja kehitti sitä edelleen lisäämällä huolellisesti suunnitellut piha-alueet, kuratoidut sisätilat ja innovatiiviset, asukaslähtöiset palvelut. Meander valmistui vuonna 2024.

Kuusitoista maalämpökaivoa lämmittää ja viilentää rakennusta, ja kaikissa asunnoissa on lattialämmitys, mikä minimoi rakennuksen elinkaaren aikaiset päästöt.
Laaja viherkatto ja aurinkopaneelikenttä tarjoavat suorituskykyetuja ja luovat viettävän, maisemallisen kävelyreitin. Rakennusmassojen muotoilemat pihat sisältävät sadeveden keruujärjestelmiä ja monipuolista kasvillisuutta, mukaan lukien luonnonvaraisia kotoperäisiä lajeja.

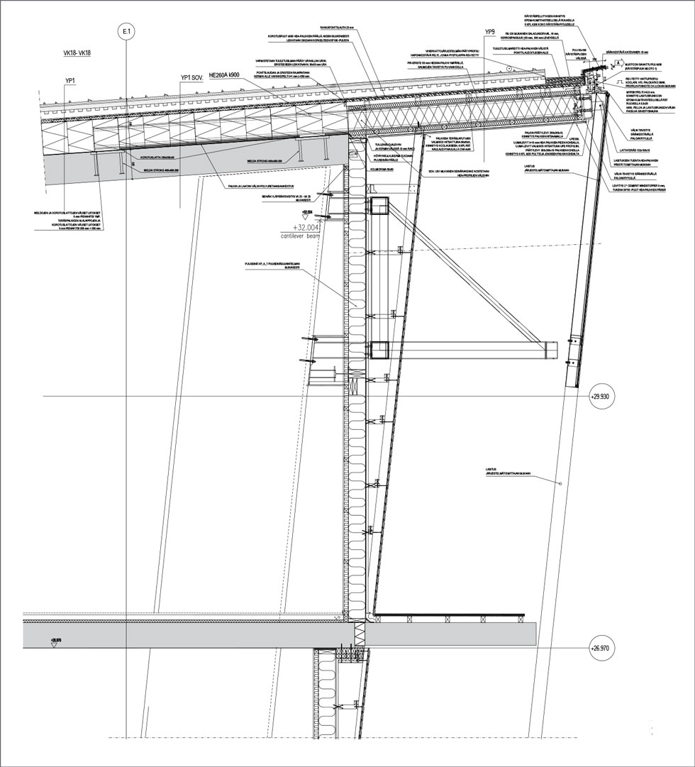
Meanderin rakenteet ovat poikkeuksellisen vaativia. Lähes kaikki kantavan rungon rakenteet ovat paikallavalettua teräsbetonia. Rakennuksen rungossa on paljon ominaisuuksia ja yksityiskohtia, joiden takia paikallavalettu runko oli selkeästi paras vaihtoehto.
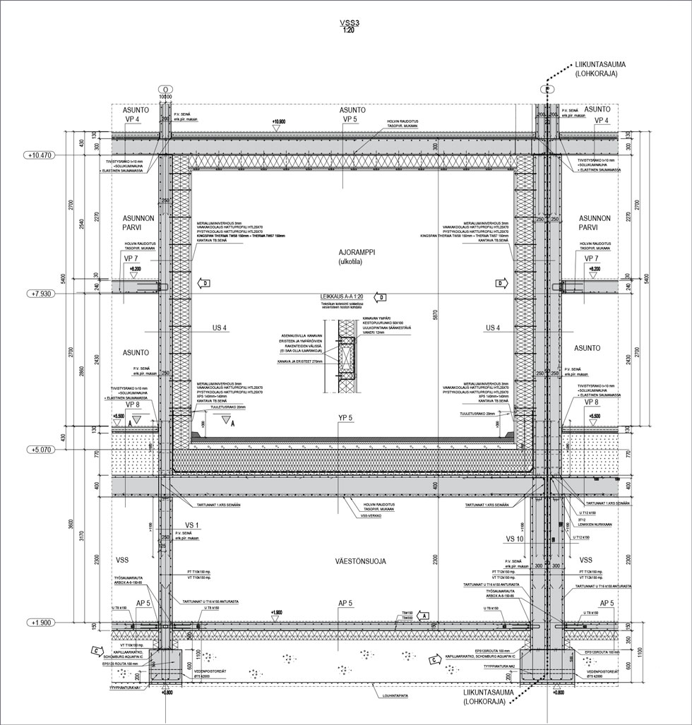
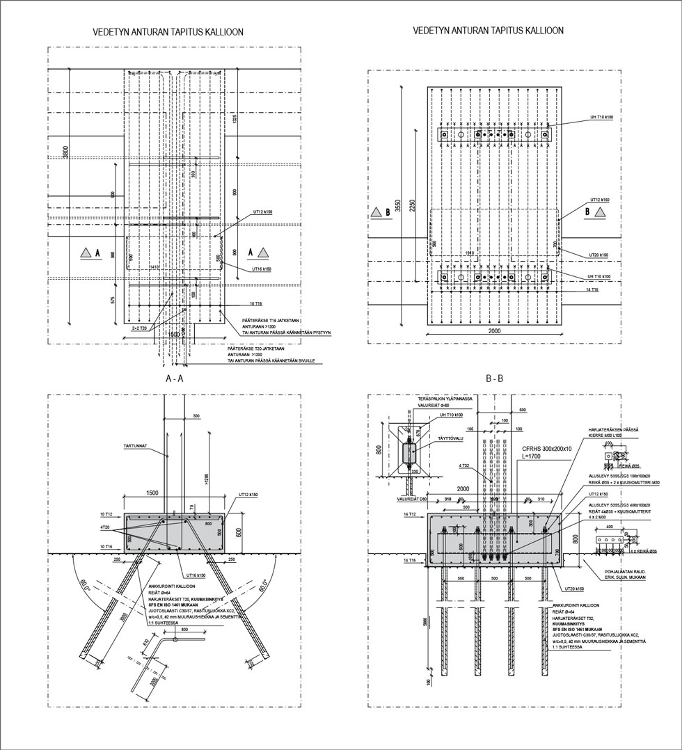
Perustukset ovat pääosin kallionvaraiset. Paalutettu perustus on rakennuksen kapeimman ja matalimman osan päädyssä. Kohde sijaitsee meren tulva-alueella, eli kaikki perustus-, kellari- ja autohallirakenteet tehtiin vesitiiviinä rakenteina.
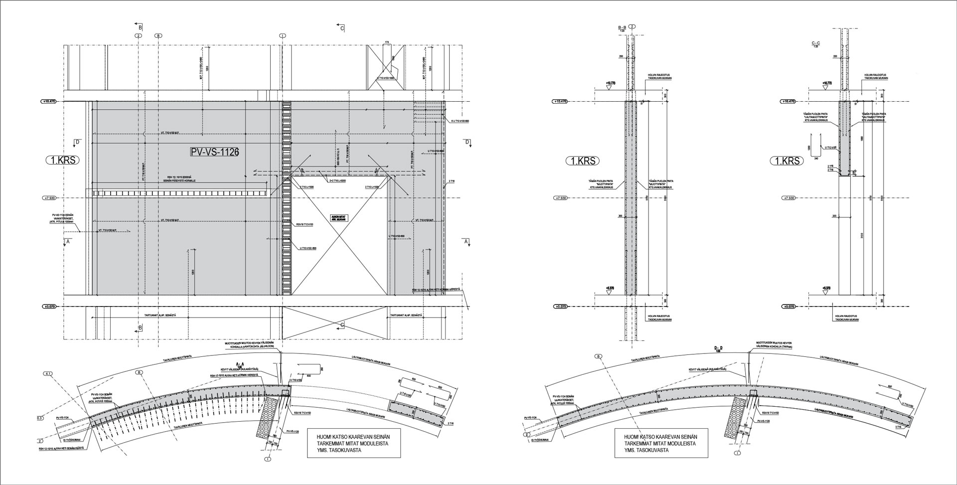
Rakennuksen paikallavaletussa kantavassa rungossa on paljon kaarevia, vinoja ja kaltevia pintoja, joiden muotokielen rakentamiseen paikallavalu sopi hyvin. Kohteessa jokainen pilari, seinä ja laatan kohta on yksilöllinen eli toistoa kohteen rakenteissa oli verrattain vähän.
Rakennusten rungossa on mm. seinäpalkkeja, lippupalkkeja, kaarevia palkkeja, ulokelaattoja ja hoikkia pilareita. Autohallin kansi on jälkijännitetty pilarilaatta.
Rakennuksen erittäin haastavassa yläpohjalaatassa ei ole vaakasuoria kohtia lainkaan. Koko vesikatto on kaltevaa viherkattoa. Yläpohjalaatan esittäminen pelkästään perinteisillä suunnitelmilla oli haastavasta geometriasta johtuen mahdotonta.
Rakennuksesta tehtiin tarkka tietomalli, joka oli avuksi varsinkin vaikeasti hahmotettavien rakenteiden mitoituksessa, yhteensovituksessa ja selkeyttämisessä.
Rakennepiirustuksia
+1

Kuvagalleria
+18
Osoite: Pohjoinen Hesperiankatu 35, Töölö, Helsinki
Arkkitehtisuunnittelu: Steven Holl Architects / Steven Holl, Noah Yaffe, JongSeo Lee, ARK-house Arkkitehdit / Pentti Kareoja, Pauli Terho
Kilpailuvaiheen pääarkkitehti: Vesa Honkonen Architects
Tilaaja, rakennuttaja: Newil&Bau Oy
Käyttäjä: As Oy Töölön Meander
Urakoitsija: SSA Rakennus Oy
Laajuus: bruttoala 14040 m2, 7 800 k-m2
Valmistusvuosi: 2024
Kaavoitus: Helsinki City Planning Office: Janne Prokkola
Rakennesuunnittelu: A-insinöörit Suunnittelu Oy / Sami Moisio
Sisustussuunnittelu: Fyra Oy
Maisema-arkkitehtuuri: VSU Maisema-arkkitehdit Oy
LVI-suunnittelu: Sitowise Oy
Sähkösuunnittelu: Sitowise Oy
Palotekninen suunnittelu: Sitowise Oy
Lasitus: Stamper Solutions Oy
Valmisbetonin toimittaja: Swerock Oy
Artikkeliin liittyviä aiheita