Lauttasaaren kirkon laaja ja onnistunut peruskorjaus on myös hienovaraisuudessaan huomaamaton.
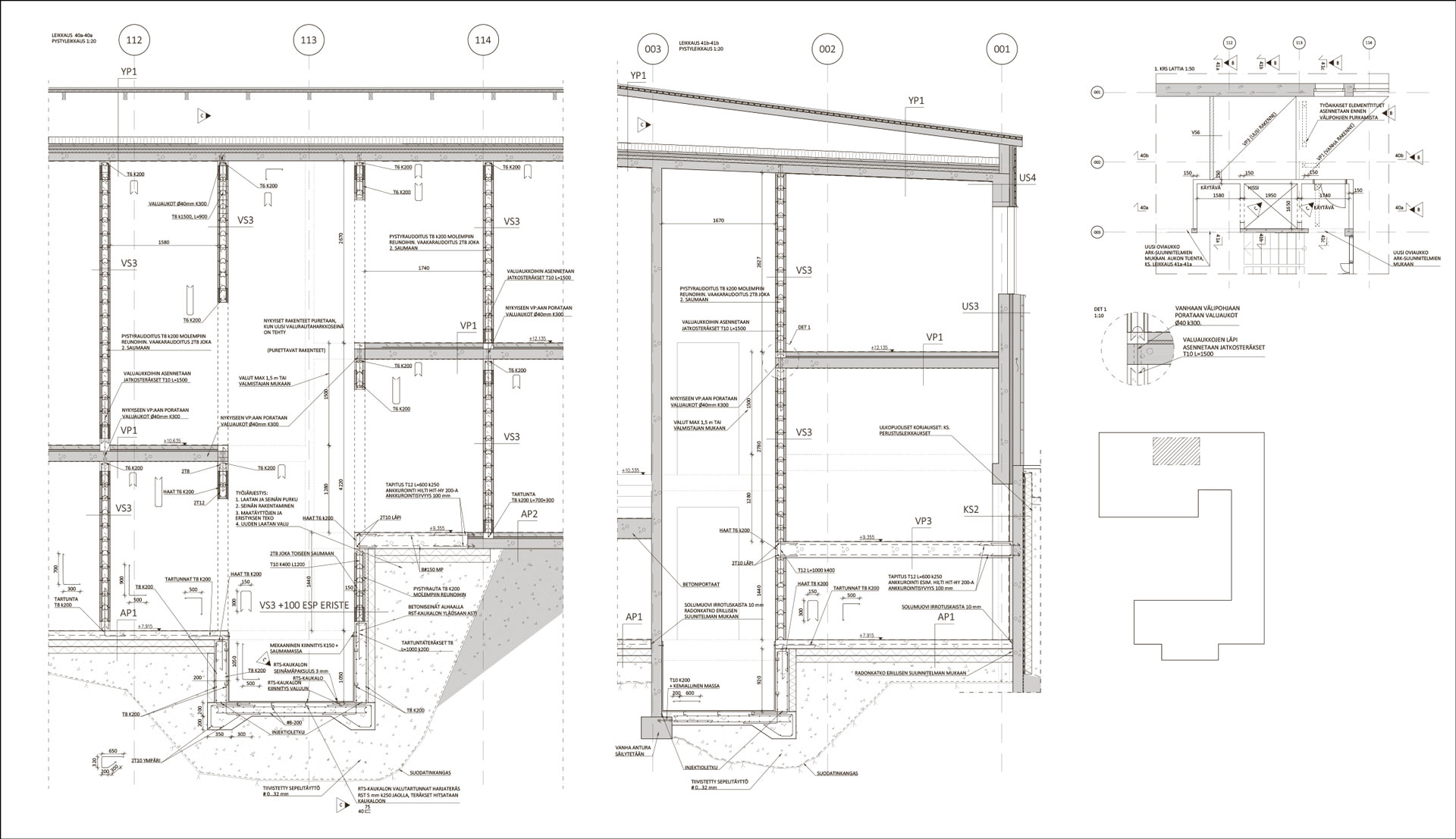
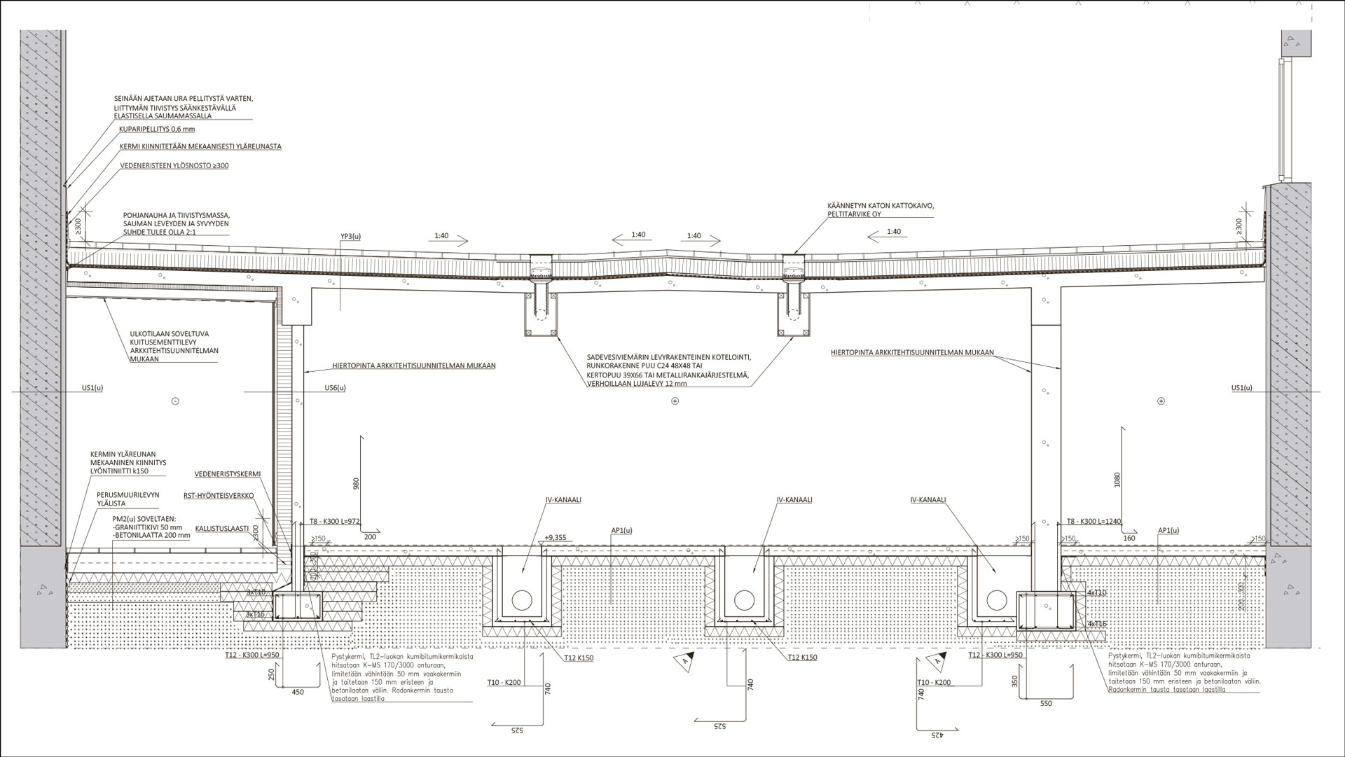
Lauttasaaren kirkon peruskorjauksessa kunnioitettiin alkuperäistä suunnittelua, parannettiin toiminnallisuutta ja korjattiin sekä uusittiin ikääntyneitä betonirakenteita.
Vuonna 1958 valmistunut Lauttasaaren kirkko Helsingissä kuuluu arkkitehtien Marja ja Keijo Petäjän pääteoksiin. Kuten pitäjän kirkon kuuluu, se sijaitsee keskellä kylää ja kukkulalla, Myllykallion mäellä. Sieltä se näkyy hyvin ympäristöönsä.
Siinä on myös yksi Suomen ensimmäisistä betonielementtijulkisivuista.
Valmistuessaan Lauttasaaren kirkko oli sekä häkellyttävän moderni että turvallisen perinteinen. Se ei olekaan pelkkä kirkko, vaan ”Lauttasaaren kirkollinen työkeskus”, kuten jo sen suunnittelemiseksi julkistetun arkkitehtikilpailun toimeksiannossa kirjattiin.
Petäjien ehdotus ei suinkaan voittanut kilpailua. Sen voitti arkkitehti Osmo Lappo ehdotuksellaan ”Saarella palaa”. Kaksi muuta palkittua olivat arkkitehti Bertel Saarnio ehdotuksella ”Viheriöivä risti” ja arkkitehti Aarno Ruusuvuori ehdotuksella ”Kolme”.
Palkintolautakunta lunasti myös kaksi muuta työtä, Petäjien (mukana myös arkkit. yo. Heikki Koskelo) suunnitelman ”Cour” ja arkkitehtien Kauko Tiihonen ja Erkki Pasanen suunnitelman ”Terrazza”.
Ehdotusta ”Cour” (sisäpiha) palkintolautakunta piti kiinteänä, maastoon hyvin sopeutuvana, kehityskelpoisena ja ”miehekkäänä”. Lautakunnan yksimielinen käsitys olikin, että toteutettuna juuri tämä suunnitelma johtaisi parhaaseen lopputulokseen.
Petäjän ehdotusta ei kuitenkaan voitu palkita, sillä se poikkesi joiltain osin kilpailun säännöistä.
Lauttasaaren kirkon peruskorjaus, Helsinki
- Valmistusvuosi: 2022
- Tilaaja: Helsingin Seurakuntayhtymä / Kiinteistöosasto
- Laajuus: 5870 m2
- Arkkitehtisuunnittelu: Verstas Arkkitehdit Oy
- Vastaava arkkitehtisuunnittelija: Riina Palva, arkkitehti SAFA
- Pääsuunnittelija: Anna Puisto, arkkitehti SAFA
- Projektiarkkitehti: Irma Verhe, arkkitehti SAFA / Tuula Mäkiniemi, arkkitehti SAFA
- Pihasuunnittelu: Loci maisema-arkkitehdit Oy, Maisema-arkkitehti Pia Kuusiniemi,
- Maisema-arkkitehdit Sanni Aalto, Pauliina Korhonen
- Rakennesuunnittelu: Sitowise Oy, Vastaava rakenne- ja rakennusfysikaalinen suunnittelija Heikki Aronen, rakennesuunnittelija Antti Taivalkangas
- LVIA- ja sähkösuunnittelu: Rejlers Finland Oy
- Akustiikkasuunnittelu: Helimäki akustikot Oy
- Palotekninen suunnittelu: Insinööritoimisto Markku Kauriala Oy
- Pääurakoitsija: Lujatalo Oy
- Julkisivuelementtien valmistus: Betoniluoma Oy
- Pihakivien valmistus: Betonifabriikki Oy
- Ikkunoiden restaurointi: Vanalinna Ehitus OÜ
Lue lisää Betoni-lehdessä:
3/2025
Lauttasaaren kirkon peruskorjaus
Valmistumisvuosi: 2022
Arkkitehti: Verstas Arkkitehdit Oy
Rakennuttaja: Helsingin Seurakuntayhtymä / Kiinteistöosasto
Elementtitoimittaja: Betoniluoma Oy
Myllykallionrinne 1, 00200 Helsinki



























































