Berliinin Charlottenburgin kaupunginosassa on uusi ja niin sanottuja klusteriasuntoja käsittävä hotellimainen kerrostalo nimeltään Carlotta. Aito kaupunkitalo se on sikäli, että jalkakäytävän vieressä on liiketiloja, kuten päiväkahvila ja pieni kuntokeskus. Perinteisen asuntokadun julkisivurivistössä uusi rakennus on paikannut aukon, jonka nyt täyttää naapuritalojen kokoon ja olemukseen hyvin sopeutuva uudenlainen asuntohotelli. Arkkitehti Tarja Nurmi kävi koeasumassa paikan päällä.
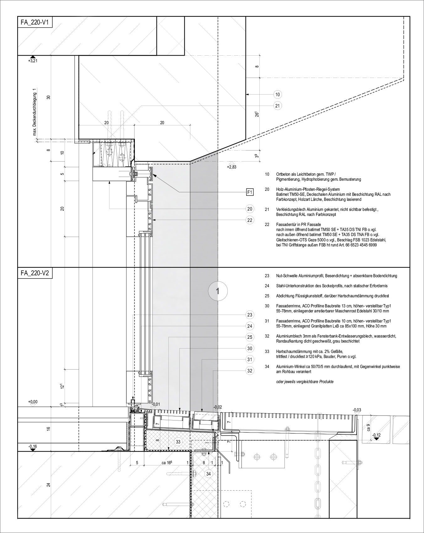
Rakennuksen varsinainen runko on paikalla valettua betonia. Katujulkisivu on rakennepaksuudeltaan noin 50 cm lämpöä eristävää kevytbetonia. Kadulle avautuvat suuret puualumiini-ikkunat. Lisää elävyyttä julkisivuun tuovat asuinkerrosten suurten, ikään kuin taulunkehysten ympäröimien ikkunoiden ulkopuolella sijaitsevat liukusäleiköt.
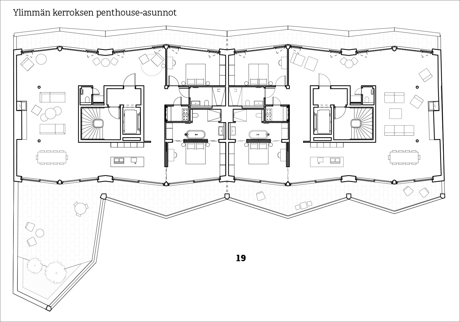
Tavanomaisesta asuntohotellista Carlotta eroaa siten, että siinä on itsenäisiä yksiköitä, joita voidaan pariovien avulla yhdistää kokonaiseksi huoneistoksi – siitä nimitys ”klusteriasunnot”. Ideana on, että rakennuksessa voi asua useitakin kuukausia, mutta ei pysyvästi. Konsepti sopii yhtä hyvin yksin matkustavalle kuin ystävä- tai työryhmille, jalkapallojoukkueille tai vastaaville sekä perheelle tai suvulle, joka haluaa viettää merkkipäiviä tai vaikkapa loma- tai joulukauden Berliinissä.
Carlotta, Berlin
- Sijainti: Pestalozzistraße 55A, Berlin-Charlottenburg
- Rakennuttaja: 1. Jeonie GmbH
- Arkkitehtisuunnittelu: Grüntuch Ernst Architekten
- Valmistumisvuosi: 2024
Lue lisää Betoni-lehdessä:
4/2025
Carlotta – kaupunkitalo betonista
Valmistumisvuosi: 2024
Arkkitehti: Grüntuch Ernst Architekten
Rakennuttaja: 1. Jeonie GmbH
Pestalozzistraße 55A, Berlin, Saksa






























































