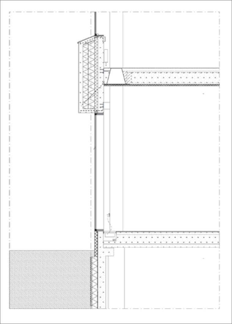
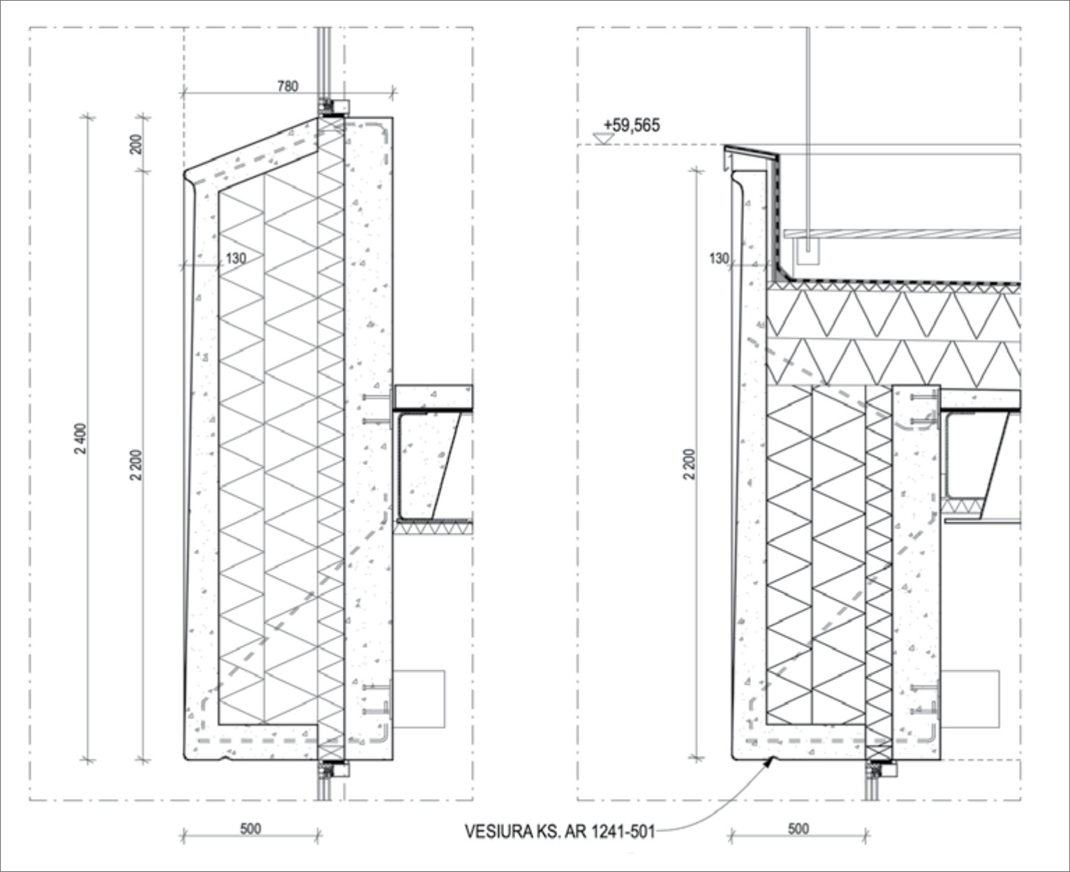
EriCa, Green Chemistry Park Espoon Finnoossa on edelläkävijähanke vihreän kemianalan ja kestävän kehityksen saralla. Tavoitteena on ollut luoda huipputason tutkimus- ja yritysympäristö, joka kokoaa yhteen alan johtavat toimijat, startupit ja tutkimuslaitokset. Rakennuksen julkisivuissa käytettiin uutta muotobetoni-teknologiaa.
JKMM Arkkitehdit Oy palkittiin tällä kohteella marraskuussa 2025 Vuoden 2025 Betonijulkisivu -arkkitehtuuripalkinnolla.
EriCa Green Chemistry Park
- Osoite: Malleniuksenkatu 1, 02270 Espoo
- Tilaohjelma: Aula, kokoustilat, laboratoriot, monitoimitilat, pysäköintitilat, ravintola, taukokeittiöt ja työkahvilat, työympäristö, yhteistyötilat
- Laajuus: 21 150 m2
- Sertifiointi: BREEAM Very Good
- Valmistumisvuosi: 2025
- Tilaaja: A. Ahlström, Kirkon Eläkerahasto, Aktia Henkivakuutus Oy
- Pääkäyttäjä: Kemira Oyj
- Projektinjohtokonsultti: Haahtela Oy
- Arkkitehtisuunnittelu: JKMM Arkkitehdit Oy
- Suunnittelutiimi: Juha Mäki-Jyllilä, pääsuunnittelija, Jukka Mäkinen, projektiarkkitehti, Elina Niemi, projektisisustusarkkitehti, Anna Melander, Riikka Heldan, Olli Vaskelainen, Harri Lindberg, Pinja Hänninen, Sami Laine
- Rakenne- ja elementtisuunnittelu: Ramboll Finland Oy
- Pääurakoitsija: Haahtela Oy
- Betonielementtitoimittaja: Betoniluoma Oy yhteistyössä Muotobetoni Oy:n kanssa
Lue lisää Betoni-lehdessä:
4/2025: Uutta julkisivuarkkitehtuuria toteutettiin muotobetonilla – EriCa, Green Chemistry Park
4/2025: Betonijulkisivu -arkkitehtuuripalkinto 2025 Erica, Green Chemistry Parkille
Erica Green Chemistry Park
Valmistumisvuosi: 2025
Arkkitehti: JKMM Arkkitehdit Oy
Rakennuttaja: A. Ahlström, Aktia Henkivakuutus Oy, Kirkon Eläkerahasto
Elementtitoimittaja: Betoniluoma Oy, Muotobetoni Oy
Malleniuksenkatu 1, 02270 Espoo
































































