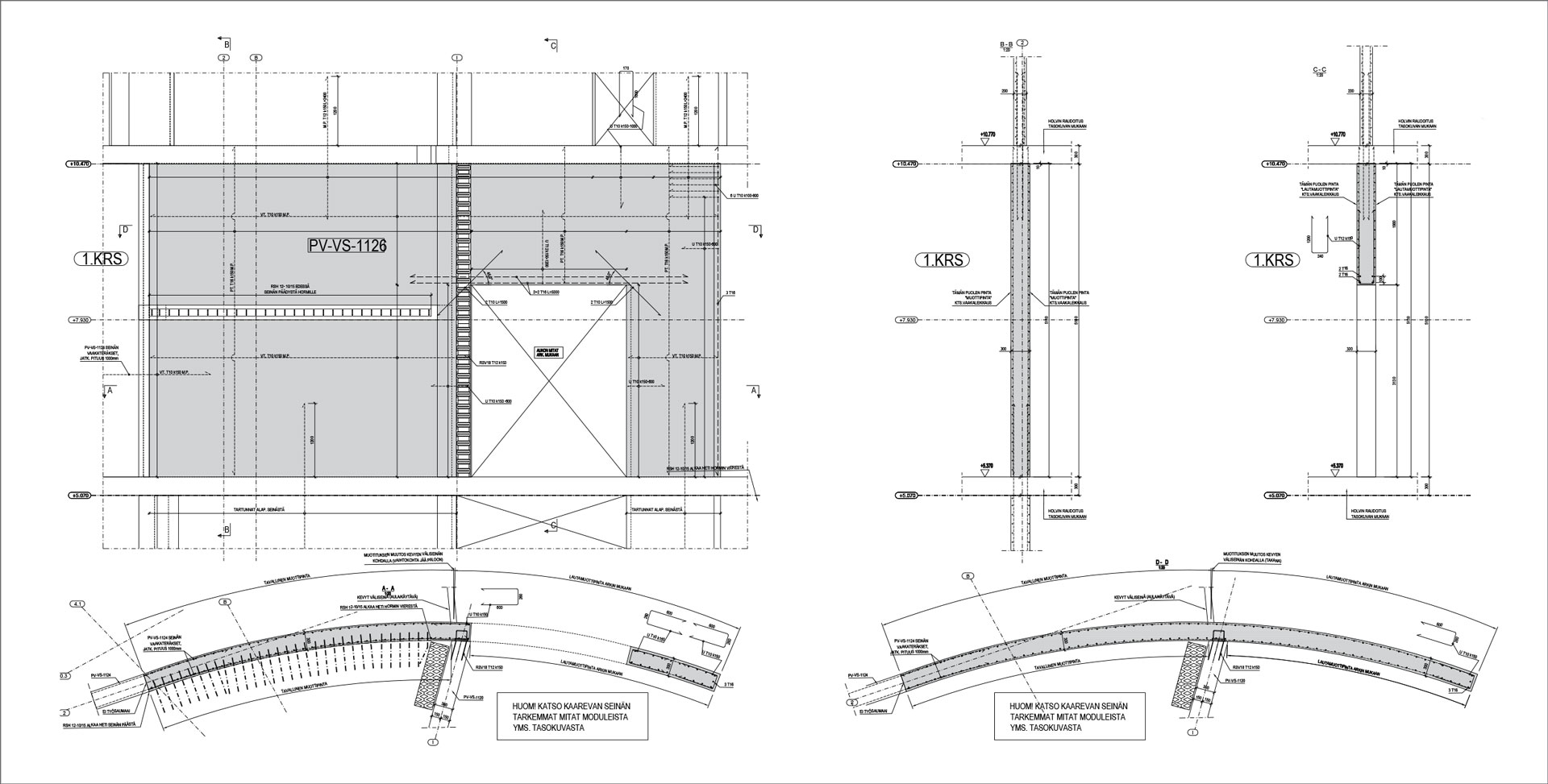
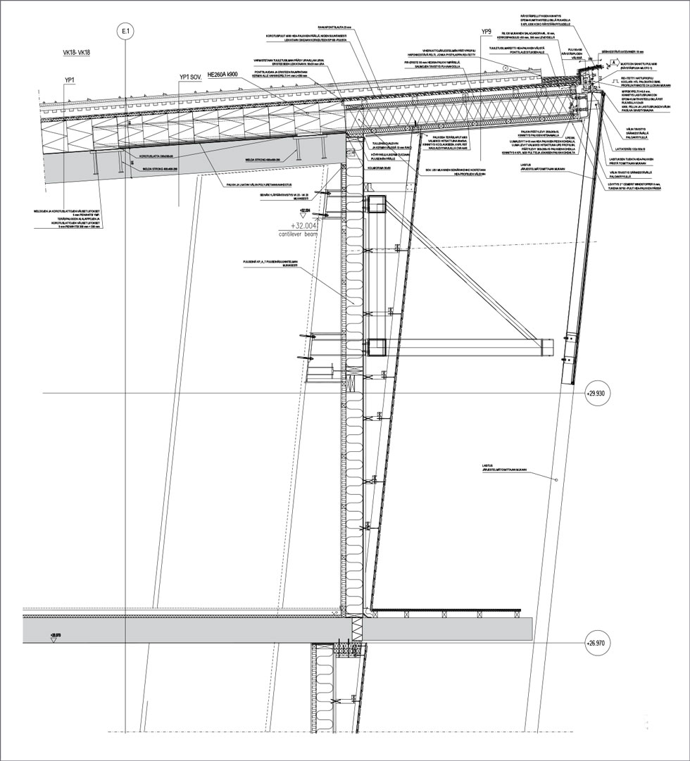
Meander Helsinki on yli sata metriä pitkä ja polveileva, 115 asunnon asuinkerrostalo Helsingin Töölössä, joka hyödyntää rakennuspaikan näkymiä ja tarjoaa asukkailleen monipuolisia yhteistiloja sekä ekologisia ratkaisuja. Rakennuksen kantava runko on paikallavalettua teräsbetonia, ja perustukset ovat pääosin kallionvaraisia.
Arkkitehtuuria ja materiaalien vuoropuhelua
Asuinkerrostalo Meanderin muoto hyödyntää rakennuspaikan näkymiä ja synnyttää ympärilleen intiimejä lähiulkotiloja. Yli sata metriä pitkä, polveileva rakennusmassa sisältää 115 asuntoa ja sen korkeus vaihtelee kahdesta seitsemään kerrokseen. Rakennus kulkee suorakulmaisen tonttinsa läpi kuin musiikillinen nuottiviivasto. Helsingin Töölössä, Taivallahden rannalla, sijaitsevaa tonttia reunustavat asuinrakennukset ja historiallisesti merkittävät Taivallahden autopataljoonan rakennukset.
Koko rakennusta kiertää lasilla verhoiltu, suojaava parvekevyöhyke. Meanderin kantavana rakenteena toimivat kohtisuorat betoniseinät, ja julkisivu on verhottu vaakasuuntaisilla, lämpimään sävyyn kuullotetuilla puupaneeleilla.
Kaikki asunnot avautuvat maisemaan korkeiden ikkunoiden ja yksityisten parvekkeiden kautta, näkyminä joko Taivallahden satama-alue, tai Hesperianpuiston vehreys. Yöllä rakennus hehkuu kuin jääveistos.
Rakennukseen on sisällytetty materiaalien ja yksityiskohtien kokemuksellinen ulottuvuus. Räätälöidyt ovenkahvat, valaisimet, käsinkudotut villamatot ja valetut koirankulhot heijastavat Meanderin muotoa. Kaikki puu on paikallisesti hankittua, mukaan lukien kestävästi korjattu suomalainen kuusi ulkoverhouksessa, parvekkeissa ja ikkunoissa.
Asukkaiden yhteisiä tiloja ovat muun muassa saunat, joogastudio, viinikellari, yhteiset oleskelu- ja coworking-tilat sekä 12-paikkainen elokuvateatteri. Taide ja arkkitehtuuri yhdistyvät suomalaisen kuvataiteilijan Fanny Tavastilan teoksissa; hän loi uniikkeja töitä jokaisen asukkaan kotiin sekä Meanderin yhteisiin oleskelutiloihin.
Steven Holl Architects saavutti kansainvälistä mainetta voitettuaan kansainvälisen kilpailun Helsingin nykytaiteen museon suunnittelusta. Voittanut ehdotus Kiasma valmistui vuonna 1997. Meander merkitsee studion paluuta Helsinkiin. Projekti toteutettiin yhteistyössä ARK-house Arkkitehtien kanssa.
Vuonna 2021 Newil&Bau osti hankkeen ja kehitti sitä edelleen lisäämällä huolellisesti suunnitellut piha-alueet, kuratoidut sisätilat ja innovatiiviset, asukaslähtöiset palvelut. Meander valmistui vuonna 2024.
As Oy Töölön Meander, Helsinki
- Osoite: Pohjoinen Hesperiankatu 35, Töölö, Helsinki
- Arkkitehtisuunnittelu: Steven Holl Architects / Steven Holl, Noah Yaffe, JongSeo Lee, ARK-house Arkkitehdit / Pentti Kareoja, Pauli Terho
- Kilpailuvaiheen pääarkkitehti: Vesa Honkonen Architects
- Tilaaja, rakennuttaja: Newil&Bau Oy
- Käyttäjä: As Oy Töölön Meander
- Urakoitsija: SSA Rakennus Oy
- Laajuus: bruttoala 14040 m2, 7 800 k-m2
- Valmistusvuosi: 2024
- Kaavoitus: Helsinki City Planning Office: Janne Prokkola
- Rakennesuunnittelu: A-insinöörit Suunnittelu Oy / Sami Moisio
- Sisustussuunnittelu: Fyra Oy
- Maisema-arkkitehtuuri: VSU Maisema-arkkitehdit Oy
- LVI-suunnittelu: Sitowise Oy
- Sähkösuunnittelu: Sitowise Oy
- Palotekninen suunnittelu: Sitowise Oy
- Lasitus: Stamper Solutions Oy
- Valmisbetonin toimittaja: Swerock Oy
Lue lisää Betoni-lehdessä:
4/2025
Meander – asuinkerrostalo Töölössä
Valmistumisvuosi: 2024
Arkkitehti: ARK-House Arkkitehdit Oy, Steven Holl Architects
Rakennuttaja: Newil & Bau Oy
Pohjoinen Hesperiankatu 35, Töölö, Helsinki









































































