Vuonna 1965 valmistunut Tapiolan kirkko kuuluu Tapiolan keskustan 1900-luvun modernia arkkitehtuuria edustaviin, asemakaavalla suojeltuihin rakennuksiin. Kirkon peruskorjauksen myötä rakenteet toimivat nyt kosteusteknisesti hyvin ja julkisivuelementit voidaan käyttää hallitusti loppuun.
Tapiolan kirkosta järjestettiin kutsukilpailu, jonka voitti professori, arkkitehti Aarno Ruusuvuori kilpailutyöllään ”Pyhät puut.” Kirkon tonttia ympäröivät korkeat valkoiset tornitalot, joiden kanssa kirkkorakennuksen on vaikea kilpailla, joten arkkitehti päätti tehdä rakennuksesta tumman varjon mäntymetsikköön.
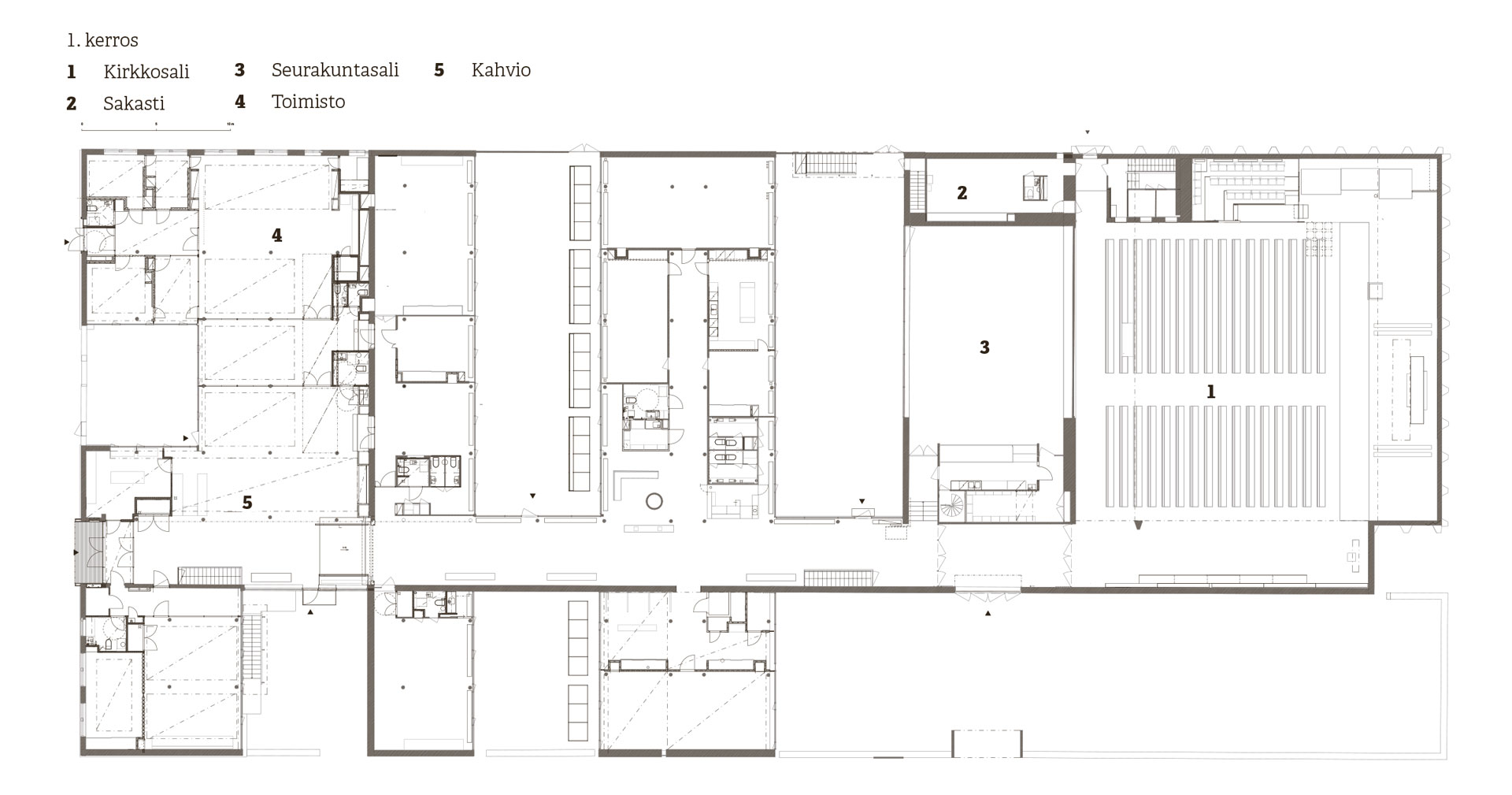
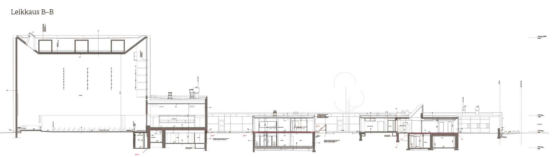
Betonista rakennettu kirkkorakennus on ulkoapäin muurien sulkema ja sen korkein osa on kuutiomainen kirkkosali. Rakennuksella ei ole selkeää pääjulkisivua. Rakennuskompleksiin kuuluvat sisäpihan toisistaan erottamina varsinainen kirkkosali, pienempi seurakuntasali, toimistotilat sekä kerhotilat. Huonetilat avautuvat lasiseinillä sisäpihalle. Tapiolan kirkossa ei ole tornia tai myöskään erillistä kellotornia.
Kirkko on kaksikerroksinen. Ensimmäinen kerros on maan tasalla. Alimmassa kerroksessa on pommisuojat sekä erilaisia kerho- ja neuvottelutiloja.
Arkkitehti Anna Ruusuvuoren suunnittelema laajennus valmistui vuonna 1992.
Tapiolan kirkon peruskorjaus, Espoo
- Valmistumisvuosi: 2021–2022
- Tilaaja: Espoon seurakuntayhtymä
- Laajuus: 3502 m2
- Arkkitehtisuunnittelu: AFKS Arkkitehdit Oy, Jari Frondelius, pääsuunnittelija, Jaakko Keppo, Juha Salmenperä ja Riitta Tuomisto, projektiarkkitehdit
- Sisustussuunnittelu: Kaj Van der Puij
- Maisemasuunnittelu: Soile Heikkinen
- Urakoitsija: Peab Oy, allianssi
- Rakennesuunnittelu ja rakennusfysikaalinen suunnittelu: Ideastructura Oy, Antti Nurmi, Antti Siika-aho
- Akustiikkasuunnittelu: Akukon Oy, Anssi Ruusuvuori
- LVIA-, sähkö- ja valaistussuunnittelu: Granlund Oy
- Palotekninen suunnittelu: KK-Palokonsultti Oy
Lue lisää Betoni-lehdessä:
3/2025
Tapiolan kirkon peruskorjaus
Valmistumisvuosi: 2021
Arkkitehti: AFKS Arkkitehdit Oy
Rakennuttaja: Espoon seurakuntayhtymä
Kirkkopolku 6, 02100 Espoo


































































